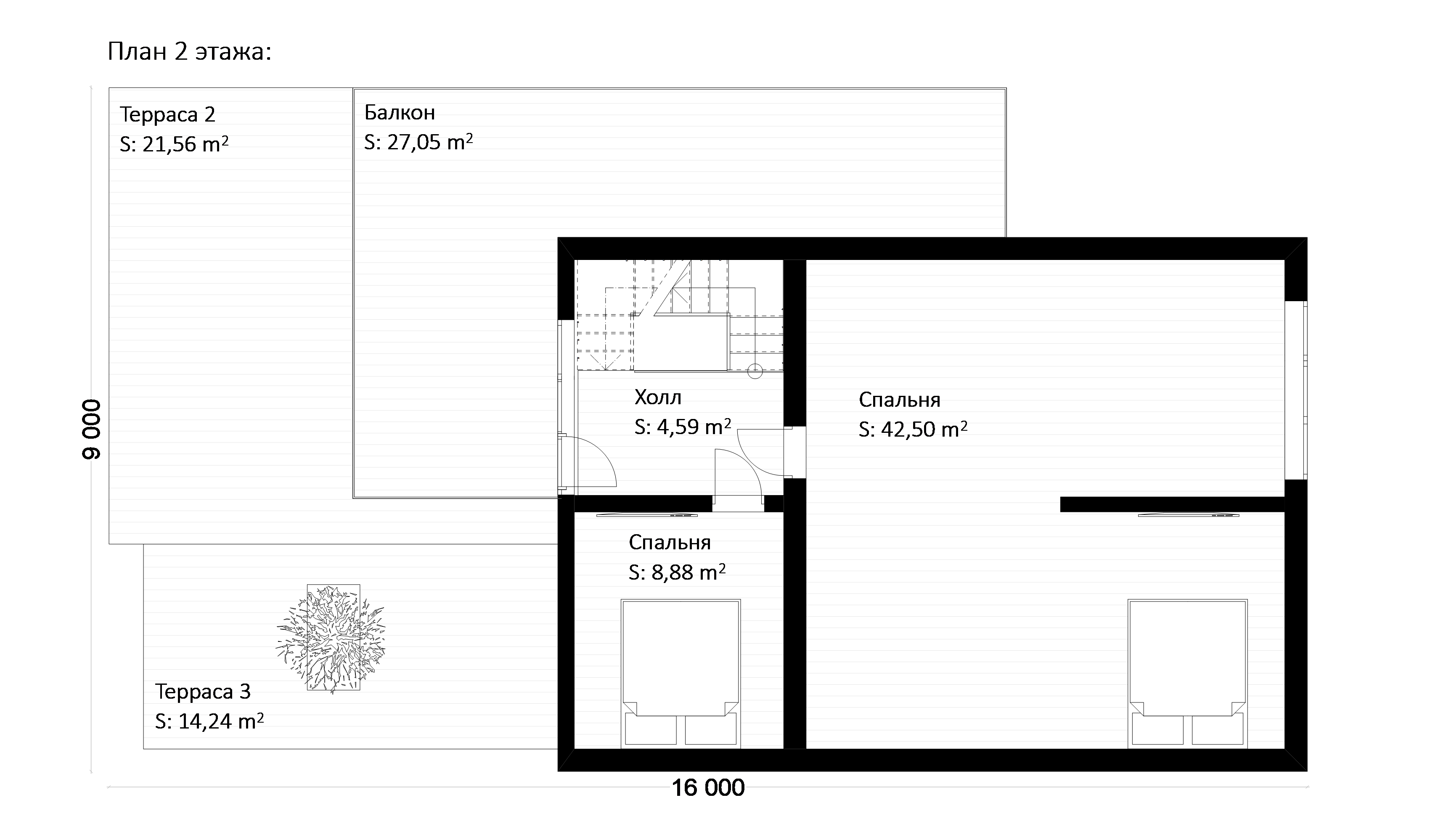
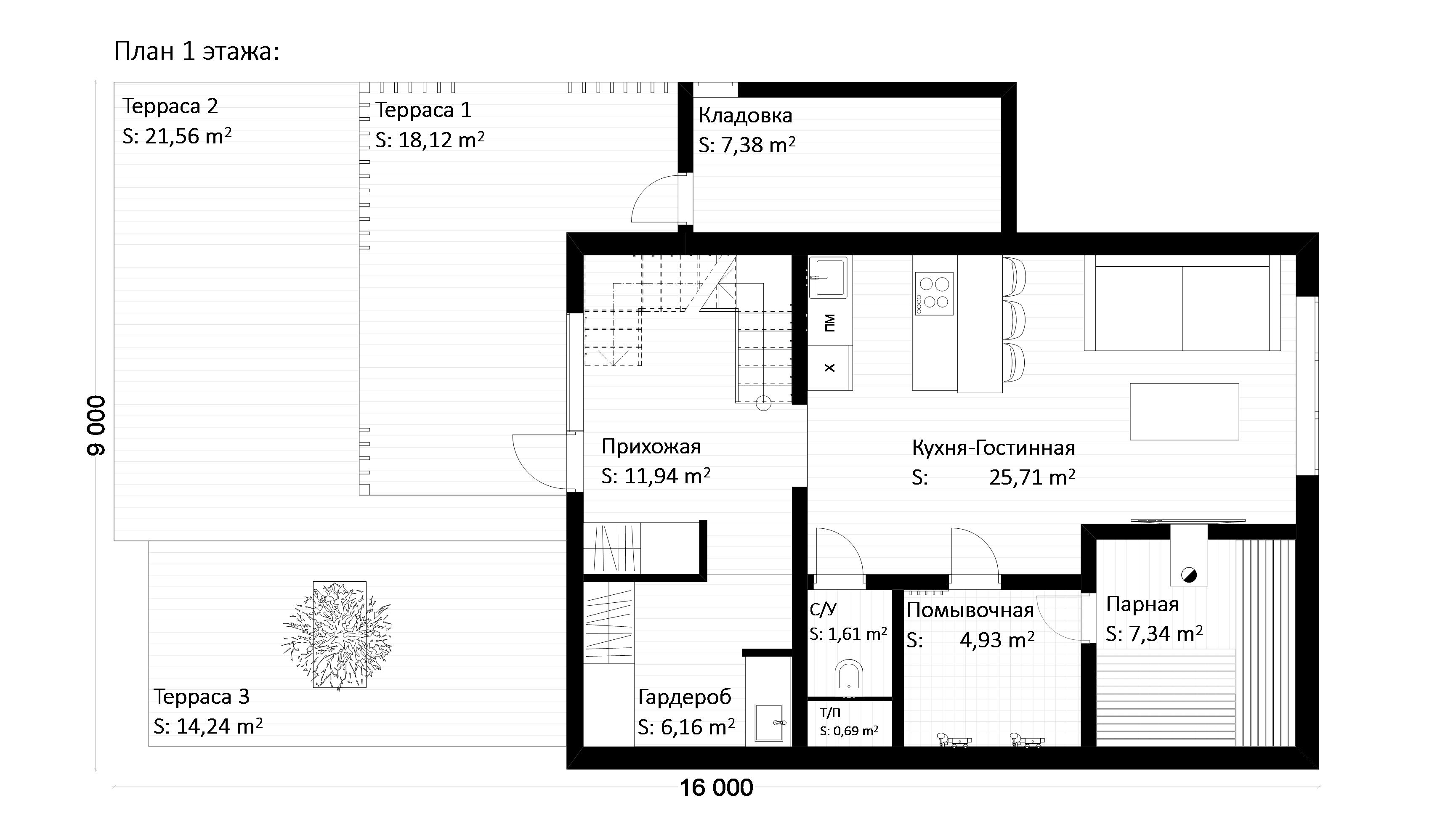
Проект каркасного дома "Игорь" 16х9м.
Этот дом включает в себя две уютные спальни, просторную кухню-гостиную, удобную гардеробную-постирочную, современный санузел, а также помывочную и парную для релаксации. Идеально подходит для семьи из трех человек. Просторная кухня-гостиная станет любимым местом для совместного времяпровождения и приема гостей.
| ТЕХНИЧЕСКОЕ ОПИСАНИЕ ТЁПЛЫЙ КОНТУР: | |
|---|---|
| Фундамент: | Свайно-винтовой, сваи 2500х108мм обшивка ЦСП, либо доска строганная 20х100 мм. |
| Основание: | Обвязка, брус 150х150мм лаги, доска 40х200мм шаг 300мм гидроизоляция- РПП 300. |
| Полы: | Черновой ОСБ 9 мм. утепление 200мм пароизоляция Изоспан. подготовка под монтаж чистового пола ЦСП 10 мм. 2 слоя. Сетка от грызунов. |
| Стены: | Каркас доска 40х150 мм. перегородки доска 40х100мм. шаг 590 мм. Утепление 150 мм. Паро-изоляция Изоспан, ветрозащита Белтермо 25мм. вент зазор 40 мм. обшивка снаружи имитация бруса либо ЦСП 10 мм. |
| Кровля: | Мягкая, металочерепица, профлист, цвет на выбор. Стропильная система, доска размером 40х200 мм. обрешетка, доска 20х100 мм. паро-изоляция Изоспан, ветрозащита Белтермо 25мм. Свесы и торцы, доска строганная 17х90мм. |
| Терраса: | Столбы брус строганный 140х140 мм. ограждение строганная доска 38х140 мм Пол: доска 38х140 мм. материал строганный, камерной сушки. |
| Окна: | ПВХ двухкамерные стеклопакеты, профиль 70мм, размер по проекту. |
| Двери: | Металлическая с терморазрывом, либо ПВХ двухкамерный стеклопакет, профиль 70мм. |
| Материалы: | Все материалы 1 сорта, камерной сушки, обработаны антисептиком на производстве. |
| ТЕХНИЧЕСКОЕ ОПИСАНИЕ ОТДЕЛКА: | |
|---|---|
| Полы: | Подложка Белтермо, покрытие ламинат 33 класс 8 мм. для сухих помещений. Плитка напольная, либо керамогранит для мокрых помещений. Укладка на клей, затирка. |
| Стены: | Обшивка имитацией бруса, либо гипсокартон Кнауф с покраской по профилю для сухих помещений. Стеновые панели Аквафлор, либо гипсокартон Кнауф по профилю, с последующим монтажом плитки, укладка на клей, затирка. |
| Потолки: | Имитация бруса, либо натяжные цвет на выбор. |
| Двери: | МДФ размеры по проекту, цвет на выбор. |
| Электрика: | Скрытая, в гофротрубе. Провода на освещение ВВГНГ 3х1,5 провода на розетки 3х2,5 монтируется щит с автоматами и реле контроля напряжения. |
| Сантехника: | Скрытый монтаж полипропиленовых труб для подвода и отвода воды. |
| Покраска: | Заводская шлифовка и покраска всех деревянных элементов конструкции, 1 слой грунта, 2 слоя краски. |